技术业务张经理:139-1328-9739 |
无隔板液槽式高效雷竞技软件大全
产品特性
(1)无隔板设计以降低运行成本;
(2)应用范围广,结构紧凑;
(3)液槽设计,密封性更好。
使用环境
高温度80(1800F)
高湿度100%RH
应用场所
广泛应用于洁净室及其他对空气洁净度有严格要求的领域.
使用材料表
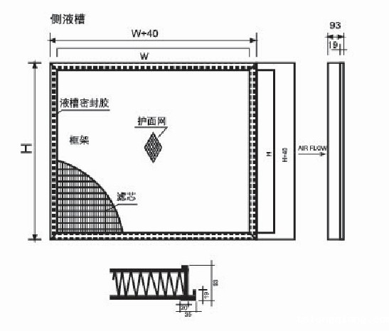
框架:阳极处理铝型材
框架可选厚度:80mm/100mm(顶液槽)/93mm(侧液槽)
滤材材质:超细玻璃纤维
分隔线:热熔胶
密封胶:聚氨脂
护面网:烤漆钢板网
贴心订制:根据您的需求,为您量身订造贴心产品。
结构说明图


初阻力-风速关系曲线图
技术参数
顶液槽
侧液槽
联系人:张小姐
手机:18914909236
电话:张小姐189-1490-9236
邮箱:cracsales08@cracfilter.com
地址: 江苏省苏州昆山市巴城镇石牌工业区相石路998号